Dom nr 8

Status: Sprzedany
Powierzchnia całkowita: 193,32 m2
Powierzchnia działki: 1348 m2
Cena: 2 950 000,00 zł
Cena za metr: 15 259,67 zł Zobacz historię zmian ceny
Powierzchnia użytkowa: 186,45  m2
Miejsca w garażu: 2
Pompa ciepła
Rekuperacja
Ogrzewanie podłogowe
Aluminiowa stolarka okienna
Przygotowanie do instalacji klimatyzacji
Przygotowanie pod ładowarkę EV
Przygotowanie do instalacji fotowoltaiki
Możliwość wprowadzenia zmian lokatorskich

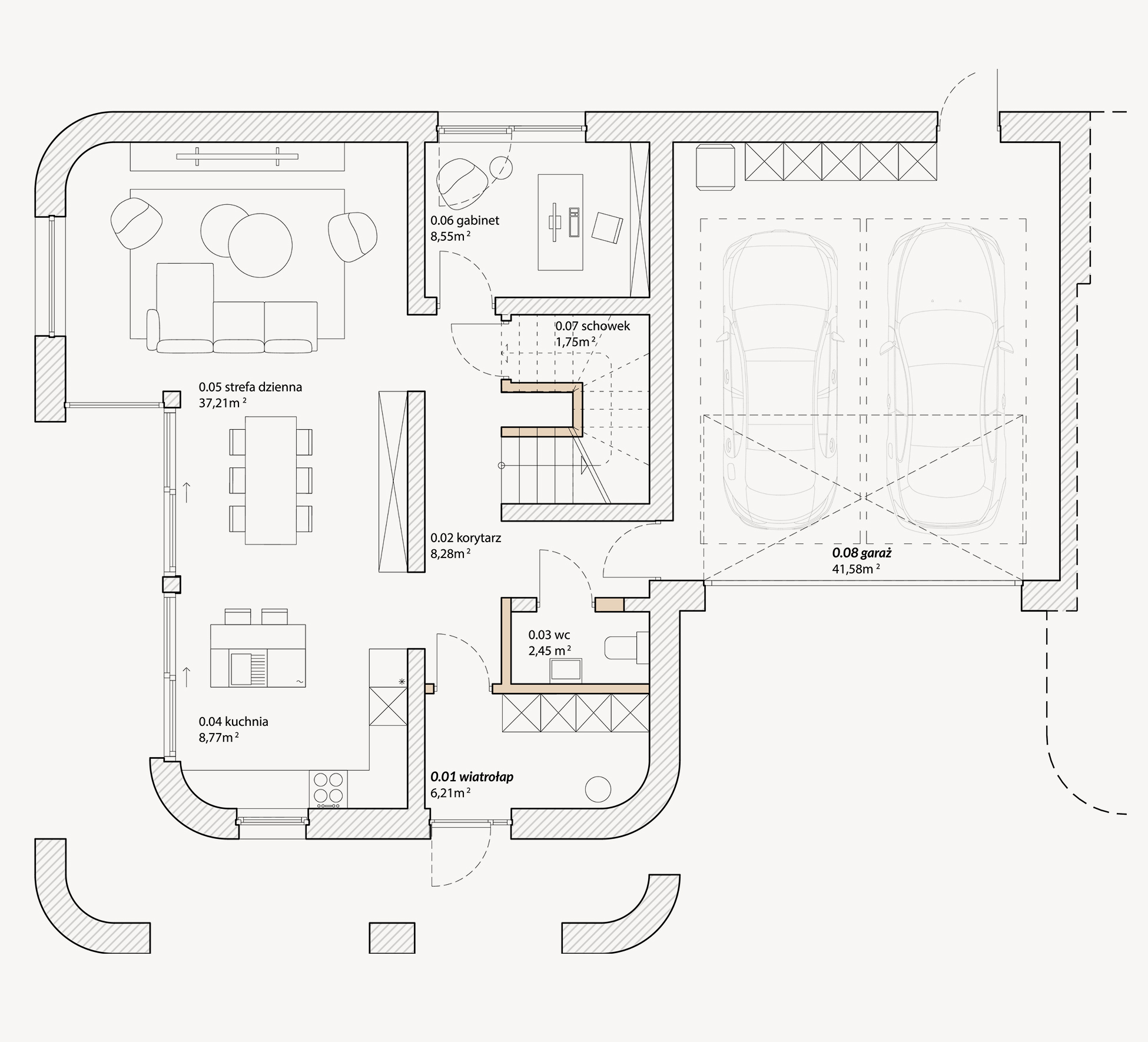
Parter 114,80 m2

01 Wiatrołap 6,21 m2
02 Korytarz 8,28 m2
03 WC 2,45 m2
04 Kuchnia 8,77 m2
05 Strefa dzienna 37,21 m2
06 Gabinet 8,55 m2
07 Schowek 1,75 m2
08 Garaż 41,58 m2

Piętro 71,65 m2

1.01 Komunikacja 7,35 m2
1.02 Pralnia 2,63 m2
1.03 Łazienka 7,74 m2
1.04 Pokój 2 12,67 m2
1.05 Pokój 1 15,81 m2
1.06 Sypialnia 15,25 m2
1.07 Łazienka 6,55 m2
1.08 Garderoba 3,65 m2

Galeria inwestycji

DOWIEDZ SIĘ WIĘCEJ

Skontaktuj się z naszym doradcą, który przedstawi aktualną ofertę i możliwości zmian aranżacyjnych.

    Imię i nazwisko*
    Adres email*
    Numer telefonu*
    Wiadomość*